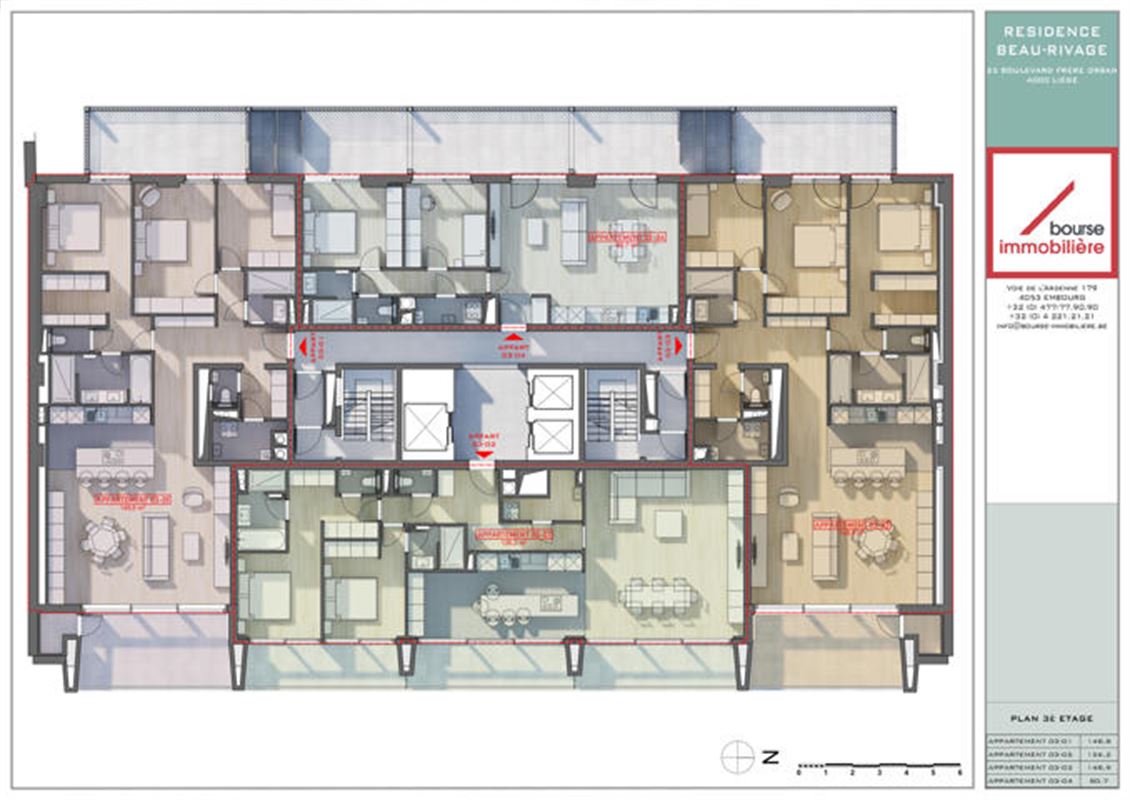
Initialement construit par l’assureur suisse Winterthur, cet immeuble de bureaux a été totalement désossé pour y créer 40 appartements de grand standing, un luxueux penthouse ainsi qu’un espace de bureaux au rez-de-chaussée. L’immeuble est composé de 10 étages quasi identiques organisés comme suit : •2 appartements 3 ch. traversants de 145 m² avec une terrasse avant (21m²) et une terrasse arrière (18m²) •1 appartement 2 ch. de 125 m² tout en façade avant avec une terrasse de 32 m2 •1 appartement compact 2 ch. de 80 m² tout en façade arrière avec terrasse de 40 m² parfaitement orientée S/S0; L'immeuble possède également un rez commercial au rez-de-chaussée avec une entrée séparée à rue ainsi que 47 parkings et 41 caves. Le premier étage pourrait être destiné à des bureaux. Grâce au prolongement des terrasses, vous profiterez pleinement des espaces extérieurs. L'architecture élégante et intemporelle de la résidence BEAU-RIVAGE se fond dans son environnement. Cette nouvelle résidence est conçue avec des matériaux durables et de grande qualité. La Résidence « Beau Rivage » est idéalement située boulevard Frère Orban, entre « Les Terrasses » et l’avenue Blonden ; à 1 km du centre-ville et 1 km de la gare Calatrava (gare des Guillemins). Grâce à d'importants travaux de réaménagement, les quais de la rive gauche de la Meuse offrent une grande accessibilité aux cyclistes et aux piétons ; ce ravel vous permet de rejoindre Maastricht ou la vallée de l’Ourthe en toute quiétude et la passerelle la « Belle Liégeoise » vous permet de rejoindre le Parc de la Boverie en toute sécurité. Cet emplacement très prisé vous offre une vue magnifique sur les méandres de la Meuse. La résidence BEAU-RIVAGE se veut exclusive et de haut-standing. Profitez également de conditions de commercialisation avantageuses : Le Beau Rivage est un projet commercialisé sous le régime des droits d'enregistrement
Informations générales
Type de bien
Appartement
Sous-catégorie
Appartement
Disponibilité
Obligation locative à respecter
Etat
projets neufs
Sous régime TVA
Non
Année de construction
2021
Meublé
Non
Prix de vente
630000,00 €
Informations sur l'extérieur
Nombre de garage(s)
0
Parking extérieur
Non
Jardin
Non
Environnement
Centre de ville
Distance des transports en commun (mètres)
20 m
Distance des ecoles (mètres)
300 m
Distance des magasins (mètres)
100 m
Distance de l'autoroute (mètres)
1000 m
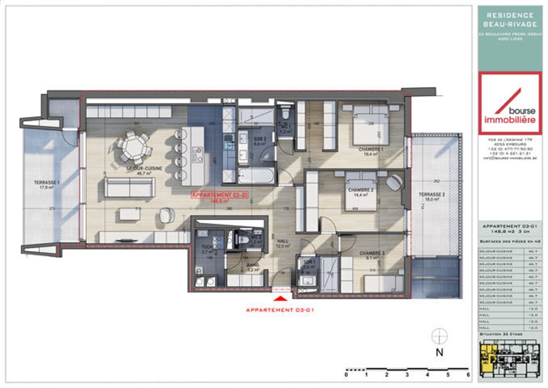
Terrasse
1
Surface terrasse 1
33 m²
Informations sur l'intérieur
Surface habitable
144,50 m²
Surface de la salle de séjour
48,08 m²
Cuisine
Oui
Type de cuisine
Cuisine Américaine - hyper-équipée
Nombre de chambres
3
Nombre de salle de bain
2
Alarme
Non
Double vitrage
Oui
Type d'énergie du chauffage
C.C. au gaz
Partager ce bien sur les réseaux sociaux
Inscription à la newsletter
Inscrivez-vous à notre newsletter pour recevoir les dernières nouvelles de Bourse Immobilière ainsi que tous nos biens à vendre en exclusivité.
Nous utilisons des cookies pour vous offrir la meilleure expérience sur notre site. Vous pouvez en savoir plus sur les cookies que nous utilisons ou les désactiver dans les
paramètres de cookies