+32 4 221 21 21

Appartement à louer à Flémalle

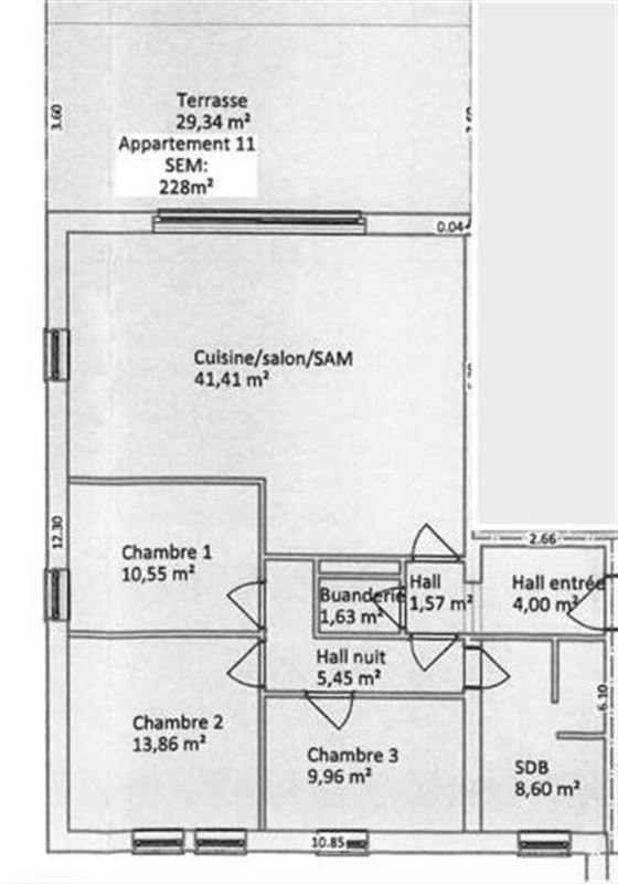
Dans un immeuble récent situé à Ivoz-Ramet, appartement au 1er étage composé comme d'un hall d'entrée, d'un WC indépendant, d'une cuisine semi-équipée ouverte sur un living, d'un hall de nuit, d'une salle de bains et de trois chambres. Belle terrasse à l'arrière de la résidence et jardin commun. Cet appartement dispose également d'un emplacement de parking intérieur, d'un emplacement de parking extérieur ainsi que d'une cave privative. Compteurs individuels pour l'eau et l'électricité - Loyer : 950€/mois - Provisions de charges communes : 120€/mois. PEB D - Espec : 280 Espec - 32793 KWH/an - Numéro unique : 20241011014481 - Libre au 15/11/2025. Renseignements et visites : 04/221.21.21.
Classe énergétique Énergie spécifique Énergie totale Émission de CO2 PEB No.
D 280kWh/m².an 32793kWh.an / 2024101104481

Informations générales

  • Type de bien Appartement
  • Sous-catégorie Appartement
  • Disponibilité Immédiate
  • Etat excellent état
  • Sous régime TVA Non
  • Meublé Non
  • Prix à louer 950,00 €

Informations sur l'extérieur

  • Nombre de garage(s) 0
  • Parking 1
  • Parking extérieur Oui
  • Nombre de parking extérieur 1
  • Jardin Non
  • Environnement Quartier calme
  • Terrasse 1
  • Surface terrasse 1 29,34 m²
  • Orientation de la terrasse 1 Sud

Informations sur l'intérieur

  • Surface habitable 100,00 m²
  • Surface de la salle de séjour 41,41 m²
  • Cuisine Non
  • Type de cuisine Non communiqué
  • Nombre de chambres 3
  • Nombre de salle de bain 1
  • Alarme Non
  • Double vitrage Oui
  • Type d'énergie du chauffage Accumulateurs électriques

Inscription à la newsletter

Inscrivez-vous à notre newsletter pour recevoir les dernières nouvelles de Bourse Immobilière ainsi que tous nos biens à vendre en exclusivité.

Évaluation gratuite