+32 4 221 21 21

Appartement à louer à Flémalle

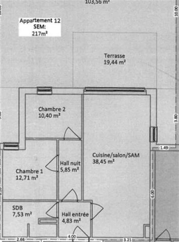
Situé au 1er étage d'un immeuble situé à Ivoz-Ramet, appartement au 1er étage avec ascenseur composé : d'un hall d'entrée, d'une cuisine semi-équipée ouverte sur un living, d'une salle de bains et de 2 chambres. Belle terrasse à l'arrière de la résidence. Emplacements de parking intérieur et extérieur + cave privative. Loyer : 830€/mois + Provisions de charges communes : 120€/mois. Compteurs individuels pour l'électricité et l'eau. PEB : D - E spec : 337 kWh/m2.an - E totale : 31 379 kWh/an - N° 20251013012864. Appartement libre au 1er janvier 2026. Renseignements et visites au 04/221.21.21.
Classe énergétique Énergie spécifique Énergie totale Émission de CO2 PEB No.
D 337kWh/m².an 31379kWh.an / 20251013012864

Informations générales

  • Type de bien Appartement
  • Sous-catégorie Appartement
  • Disponibilité en fonct. du locataire
  • Etat excellent état
  • Sous régime TVA Non
  • Meublé Non
  • Prix à louer 830,00 €

Informations sur l'extérieur

  • Nombre de garage(s) 0
  • Parking 1
  • Parking extérieur Oui
  • Nombre de parking extérieur 1
  • Jardin Non
  • Terrasse 1
  • Surface terrasse 1 19,44 m²
  • Orientation de la terrasse 1 Sud

Informations sur l'intérieur

  • Surface habitable 80,00 m²
  • Surface de la salle de séjour 44,32 m²
  • Cuisine Non
  • Type de cuisine Non communiqué
  • Nombre de chambres 2
  • Nombre de salle de bain 1
  • Alarme Non
  • Double vitrage Oui
  • Type d'énergie du chauffage Accumulateurs électriques

Inscription à la newsletter

Inscrivez-vous à notre newsletter pour recevoir les dernières nouvelles de Bourse Immobilière ainsi que tous nos biens à vendre en exclusivité.

Évaluation gratuite